Квартира 1/2+кк, 53 м2, Letňany

Praha 9, Tupolevova

Продано

Цена 3 850 501 CZK
Планировка 1+kk
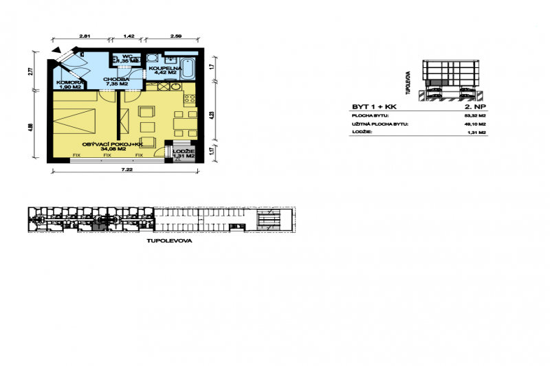
Площадь 53 m2
Балкон 1.30 m2
Этаж 2
Удаленность 30 минут на автомобиле
Остановка метро Letňany
Автобусная остановка Tupolevova
  • Marat Batyrbayev

  • Телефон

    420608364608
  • E-mail

    batyrbayev@brigerd.cz

Агентство недвижимости Brigerd предлагает на продажу квартиру 1+кк (53 м2) с возможностью использования в качестве  2+кк в жилом комплексе «Элемент» в районе Летняны – Прага 9. Квартира будет готова к заселению осенью текущего года (2019 г.).

Основная комната в квартире разделена на две части – кухню с гостиной и спальню – неполной перегородкой, разделяющей квартиру по факту на две комнаты. Ситуацию наглядно отображает план. Также в квартире есть небольшой балкон, кладовая комната, просторная прихожая и совмещенный санузел (туалет и ванна).

ЖК «Элемент» находится в популярном для жизни районе Праги 9 – Летняны. Здесь отличная инфраструктура: крупный торгово-развлекательный центр с круглосуточным продуктовым магазином «Теско», кинотеатром, массой магазинов и ресторанов; два фитнес-клуба, бассейн, каток, несколько лесопарков, школы, детские сады, поликлиника, остановки общественного транспорта и многое другое. Летняны – район с отличной экологией, прекрасно подходящий для всей семьей.

Цена - 3 850 501 Чешских крон

Praha 9, Tupolevova

Напишите нам