Квартира 2+kk, 50.6м2, Střížkov

Praha 8, Střížkovská 3/110

Продано

Цена 4 750 000 CZK
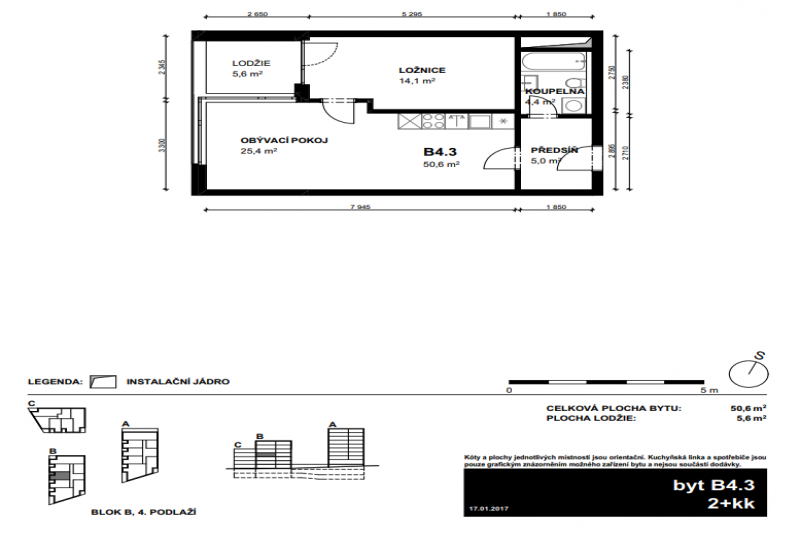
Планировка 2+kk
Площадь 50.6 m2
Балкон 5.60 m2
Этаж 4/7
Удаленность 15 минут на автомобиле
Остановка метро Střížkov
Автобусная остановка Střížkov
  • Marat Batyrbayev

  • Телефон

    420608364608
  • E-mail

    batyrbayev@brigerd.cz

Компания BRIGERD предлагает на продажу квартиру 2+кк  площадью  50,6м2 с лоджией 5,4м2 в строящемся жилом комплексе «Плаза». Проект находится прямо у станции метро Стрижков, окружен зеленью и представляет собой закрытый современный комплекс, полностью соответствующий стандартам современной городской жизни.

Благодаря особенности рельефа из окон большинства квартир открывается панорамный вид на центр старой Праги, что в сочетании с топ материалами, используемыми в отделке, значительно выделяет данный ЖК среди конкурирующих.

Стоит упомянуть, что уже в стандартном исполнении в квартире установлены французские окна, двери от фирмы Sapeli, положен пол из деревянного массива и тому подобные вещи.

Квартира состоит из прихожей, ванной с туалетом, спальни с выходом на лоджию и гостинной, совмещенной с кухней. Квартира расположена на 4 этаже, окна ориентированы на ЮЗ. Район Стрижков - это место с отлично развитой инфраструктурой, зелеными парками. Он идеально подойдет для комфортной городской жизни всей семьей.

При необходимости к каждой квартире возможно докупить гаражное место за 280 000 чешских крон.

Цена квартиры 4 850 000 чешских крон включая все расходы, связанные с оформлением.

Praha 8, Střížkovská 3/110

Напишите нам