Квартира 2+кк, 64 м2, Holešovice

Praha 7, V Háji 1092

10 990 000 CZK

Цена 10 990 000 CZK
Планировка 2+kk
Площадь 64 m2
терраса 19.00 m2
Кладовая 3.00 m2
парковка 1
Этаж 1/7
Удаленность 2 минут на автомобиле
Остановка метро Palmovka
Автобусная остановка Maniny
Трамвайная остановка Maniny
  • Marat Batyrbayev

  • Телефон

    420608364608
  • E-mail

    batyrbayev@brigerd.cz

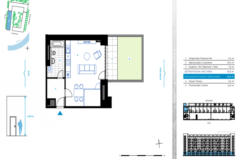
Агентство недвижимости Brigerd предлагает на продажу двухэтажную квартиру в стиле Loft 2+кк площадью 64 м2 в новой строящейся резиденции So-Ho. Высота потолка в Лофте 4,5 метра. Имеется терраса и палисадник 18м2. В квартире большие французские окна на всю стену. Окна ориентированы во внутренний двор резиденции с собственным парком. На первом этаже гостинная с кухней имеет 42м2 и ванная комната 6м2. На втором этаже спальня 18м2.

Пульсирующая атмосфера южных Голешовиц предлагает культурное наслаждение, а также модные кафе и бистро бары. Отличная доступность пешком, на велосипеде или трамвае до Карлина, Стромовки и центра города не требует автомобиля. В квартирах есть умная технология Loxone. Популярный Naše Tostarna переместится на первый этаж здания, и здесь будет создана новая концепция фитнеса и велнеса от Form Factory.

Завершение 1-го этапа запланировано на 4 квартал 2023 года, передача квартиры планируется в начале 2024 года. 

В цене квартиры парковочное место и кладовка. Также имеется на выбор еще 4 квартиры Лофт.

Praha 7, V Háji 1092

Напишите нам