Квартира 2+кк, 63 м2, Holešovice
Praha 7, V Háji 1092
10 990 000 CZK
| Цена | 10 990 000 CZK |
| Планировка | 2+kk |
| Площадь | 63 m2 |
| терраса | 20.00 m2 |
| Кладовая | 3.00 m2 |
| парковка | 1 |
| Этаж | 1/7 |
| Удаленность | 2 минут на автомобиле |
| Остановка метро | Palmovka |
| Автобусная остановка | Maniny |
| Трамвайная остановка | Maniny |
-
Marat Batyrbayev
-
420608364608
Телефон
-
batyrbayev@brigerd.cz
E-mail
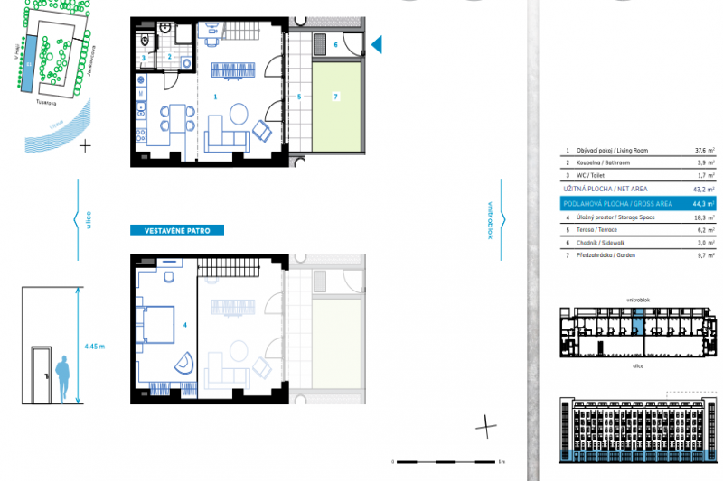
Агентство недвижимости Brigerd предлагает на продажу двухэтажную квартиру в стиле Loft 2+кк площадью 64 м2 в новой строящейся резиденции So-Ho. Высота потолка в Лофте 4,5 метра. Имеется терраса и палисадник 18м2. В квартире большие французские окна на всю стену. Окна ориентированы во внутренний двор резиденции с собственным парком. На первом этаже гостинная с кухней имеет 37м2 и ванная комната 6м2. На втором этаже спальня 18м2.
Пульсирующая атмосфера южных Голешовиц предлагает культурное наслаждение, а также модные кафе и бистро бары. Отличная доступность пешком, на велосипеде или трамвае до Карлина, Стромовки и центра города не требует автомобиля. В квартирах есть умная технология Loxone. Популярный Naše Tostarna переместится на первый этаж здания, и здесь будет создана новая концепция фитнеса и велнеса от Form Factory.
Завершение 1-го этапа запланировано на 4 квартал 2023 года, передача квартиры планируется в начале 2024 года.
В цене квартиры парковочное место и кладовка. Также имеется на выбор еще 4 квартиры Лофт.