Квартира 1+кк, 28 м2, Holešovice

Praha 7, V Háji 1092

6 150 000 CZK

Цена 6 150 000 CZK
Планировка 1+kk
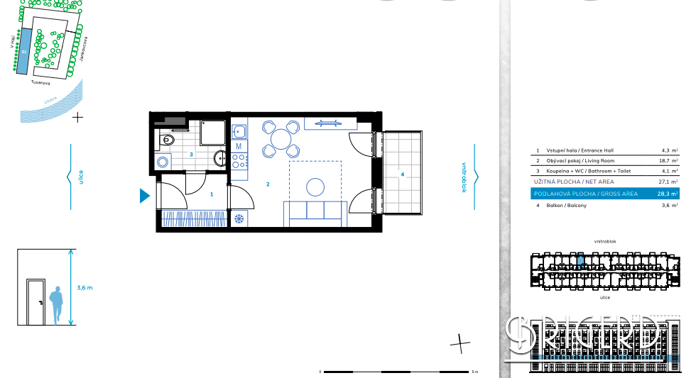
Площадь 28 m2
Балкон 3.60 m2
Кладовая 3.00 m2
Этаж 2/7
Удаленность 2 минут на автомобиле
Остановка метро Palmovka
Автобусная остановка Maniny
Трамвайная остановка Maniny
  • Marat Batyrbayev

  • Телефон

    420608364608
  • E-mail

    batyrbayev@brigerd.cz

Агентство недвижимости Brigerd предлагает на продажу квартиру в стиле Loft 1+кк площадью 28 м2 в новой строящейся резиденции So-Ho. Высота потолка в Лофте 3,5 метра. Имеется балкон 3,6м2. В квартире большие французские окна на всю стену. Окна ориентированы во внутренний двор резиденции с собственным парком.

Пульсирующая атмосфера южных Голешовиц предлагает культурное наслаждение, а также модные кафе и бистро бары. Отличная доступность пешком, на велосипеде или трамвае до Карлина, Стромовки и центра города не требует автомобиля. В квартирах есть умная технология Loxone. Популярный Naše Tostarna переместится на первый этаж здания, и здесь будет создана новая концепция фитнеса и велнеса от Form Factory.

Завершение 1-го этапа запланировано на 4 квартал 2023 года, передача квартиры планируется в начале 2024 года. 

В цене квартиры кладовка. Также имеется на выбор еще 2 однакомнатные квартиры.

Praha 7, V Háji 1092

Напишите нам