Praha 9, Strnadovych 1008/7

Sold

price 4 532 000 CZK
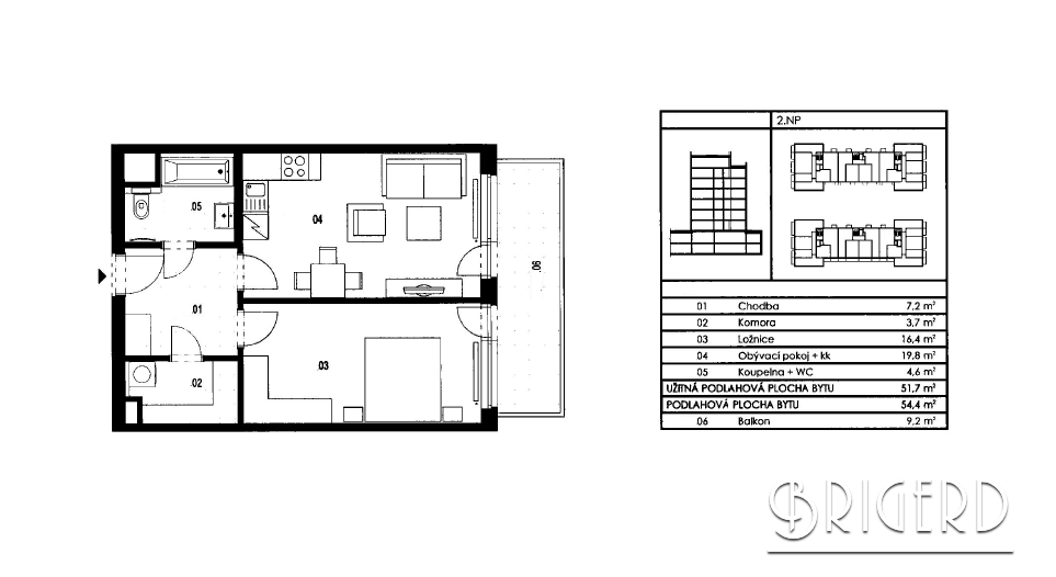
planning 2+kk
area 61 m2
Balcony 9.20 m2
stockroom 1.00 m2
parking 1
floor 2
Metro stop Kolbenova
  • Marat Batyrbayev

  • Phone

    420608364608
  • E-mail

    batyrbayev@brigerd.cz

Praha 9, Strnadovych 1008/7

Contact us