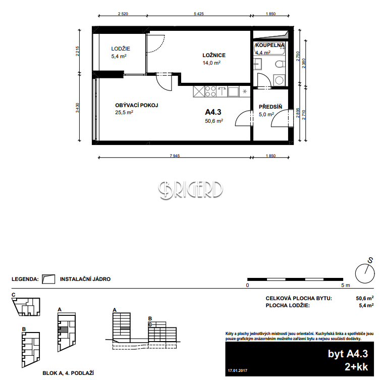
Byt 2+kk, 50,6m2, Střížkov

Praha 8, Střížkovská 3/110

Prodáno

Cena 4 650 000 CZK
Typ 2+kk
Užitná plocha 50.6 m2
Balkon 5.60 m2
Patro 4/8
Vzdálenost 15 minut autem
Metro Střížkov
Autobusová zastavka Střížkov
  • Marat Batyrbayev

  • Telefon

    420608364608
  • E-mail

    batyrbayev@brigerd.cz

Realitní společnost BRIGERD nabízí na prodej slunný byt 2+кк 50,6m2 v novém rezidenčním komplexu Plazza na Praze 9 – Střížkov.

Rezidenční komplex se nachází přímo u stanice metra Střížkov, je obklopen zelení a splňuje představu pohodlného a moderního bydlení.

Z jihozápadní části komplexu díky sestupujícímu území s nízkopodlažní zástavbou Střížkova se otevírá atraktivní výhled na historický centrum Prahy. 

Byt o dispozici 2+kk 50,6 m² s lodžií (5,4m2) se nachází v 4. nadzemním podlaží a je orientován na JZ. Dispozici bytu tvoří předsíň (5 m2), koupelna s WC (4,4 m2), obývací pokoj (25,3 m2) s potřebnou komunikaci pro připojení kuchyňské linky, ložnice (14,2 m2) se vstupem na lodžii (5,4 m2). 

Již v standardu klienti můžou počítat s francouzskými okny, interiérovými dveří Sapeli, plovoucími podlahou s masivním nákližkem. Lokalita Střížkova a Prosek je plně vybavená z občanského hlediska. V bezprostředním okolí se nachází síť obchodů, restaurací a dalších souvisejících služeb. Nechybí zde ani sportovní, vzdělávací a zdravotnická zařízení. 

Ke každému bytu lze dokoupit garážové stání za 360 000Kč.

Praha 8, Střížkovská 3/110

Napište nám