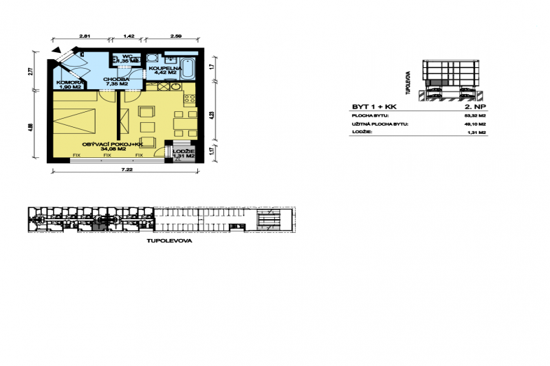
Byt 1/2+kk, 53 m2, Letňany

Praha 9, Tupolevova

Prodáno

Cena 3 850 501 CZK
Typ 1+kk
Užitná plocha 53 m2
Balkon 1.30 m2
Patro 2
Vzdálenost 30 minut autem
Metro Letňany
Autobusová zastavka Tupolevova
  • Marat Batyrbayev

  • Telefon

    420608364608
  • E-mail

    batyrbayev@brigerd.cz

Realitní kancelář Brigerd nabízí k prodeji byt 1 + kk (53 m2) s možností užívání jako 2 + kk v rezidenčním komplexu Element v Letňanech – Praha 9. Byt bude v tomto podzimu připraven k nastěhování (2019).

Hlavní místnost v bytě je rozdělena do dvou částí – kuchyně s obývacím pokojem a ložnicí – příčkou, ktera děla děla z 1+kk dvoupokojový byt.  V bytě je navíc malý balkon, komora, prostorná vstupní hala a koupelna (toaleta a vana).

Rezidenční komplex Element se nachází ve vyhledávané čtvrti Prahy 9 - Letňany. Zde je vynikající občanská vybavenost: velké nákupní a zábavní centrum s 24hodinovým obchodem Tesco, kino, hodně měnších obchodů a restaurací; dva fitness kluby, plavecký bazén, kluziště, několik lesoparků, školy, školky, zdravotní střediska, zastávky MHD apod. Letňany jsou oblastí s vynikající ekologií, ideální pro celou rodinu.

Praha 9, Tupolevova

Napište nám