Byt 1+kk, 38m2, Tulipa City

Praha 9, Strnadovych 1008/7

Prodáno

Cena 3 650 000 CZK
Typ 1+kk
Užitná plocha 38 m2
Balkon 5.50 m2
Sklep 1.00 m2
parkovací stání 1
Patro 2
Metro Kolbenova
  • Marat Batyrbayev

  • Telefon

    420608364608
  • E-mail

    batyrbayev@brigerd.cz

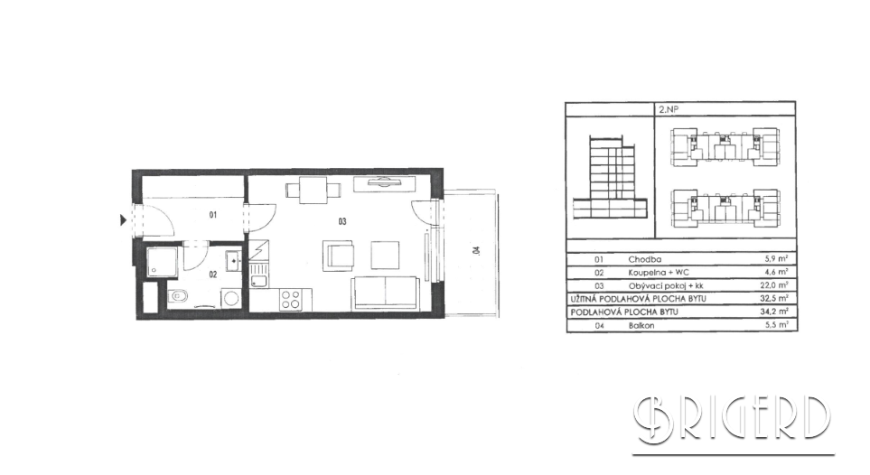
EXKLUZIVNĚ: Realitní společnost BRIGERD nabízí na prodej slunný a prostorný byt v novém rezidenčním komplexu  «Tulipa City» na Praze 9 – Vysočany. Rezidenční komplex splňuje představu pohodlného a moderního bydlení v blízkosti přírody a zároveň s komfortem města. Byt o dispozici 1+kk 38m² se nachází v 2. nadzemním podlaží a je orientován do parku.  Centrální část bytu tvoří obývací pokoj (22 m²) s potřebnou komunikaci pro připojení kuchyňské linky a vstupem na balkon (5,5 m²). Předsíň (5,9 m²) s možnosti umístění vystavení skříní. V koupelně (4,6 m²) je vana, umývadlo a WC. Ve standardu plovoucí podlahy, plastová okna s izolačním 3 sklem. Budova bude vystavěna s energetickým štítkem B, tím pádem nízkými náklady na bydlení.

  Naproti projektu (cca 300 metru) se nachází tramvajová zastávka i stanice metra Kolbenova, čímž je zaručena rychlá dosažitelnost centra města. V blízkosti plná občanská vybavenost O2, NC Fénix, restaurace, poliklinika, školy i školky. Termín kolaudace léto 2019.

 V ceně je parkovací stání a sklep. 

 Cena bytu 3 605 000 korun včetně právního servisu. 

Praha 9, Strnadovych 1008/7

Napište nám